











🗓️ Παράδοση: Φθινόπωρο 2025
Τιμή: 560.000€
Στην περιζήτητη και ήσυχη περιοχή της Άνω Γλυφάδας, προσφέρεται προς πώληση οροφοδιαμέρισμα υψηλής αισθητικής στον 2ο όροφο, επιφάνειας 108 τ.μ., σε πολυκατοικία σύγχρονης αρχιτεκτονικής και κατασκευής. Πρόκειται για έναν χώρο που συνδυάζει λειτουργικότητα, μοντέρνο σχεδιασμό και κορυφαία ενεργειακή απόδοση, ιδανικό για οικογένειες ή απαιτητικούς αγοραστές.
Εμβαδόν: 108 τ.μ.
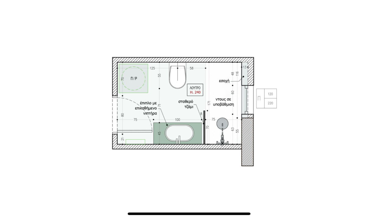
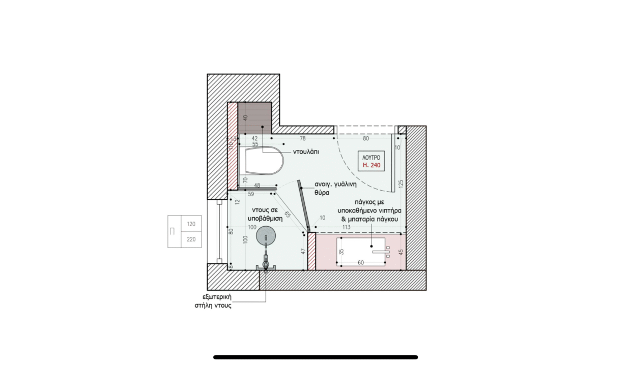
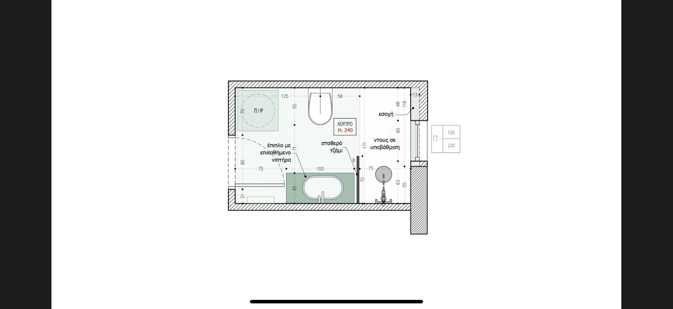
3 υπνοδωμάτια, εκ των οποίων το ένα μάστερ με ιδιωτικό μπάνιο
1 επιπλέον μπάνιο
1 WC (βεσέ)
Ευρύχωρο σαλόνι με μεγάλα ανοίγματα
Μοντέρνα κουζίνα
Μεγάλα μπαλκόνια με ανεμπόδιστη θέα
Ενεργειακή κλάση Α+
Σύστημα αντλίας θερμότητας για θέρμανση/ψύξη
Θερμοπρόσοψη και ενεργειακά κουφώματα
Ηλιακός θερμοσίφωνας
Προεγκατάσταση έξυπνου σπιτιού (smart home)
Δυνατότητα επιλογής υλικών (κουζίνα, ντουλάπες, είδη υγιεινής)
Ηλιακό πάνελ, που προσφέρει ενεργειακή απόδοση και εξοικονόμηση κόστους, ενώ ενισχύει τον βιώσιμο τρόπο ζωής
Ξύλινα πατώματα υψηλής ποιότητας σε όλο το σπίτι, προσφέροντας ζεστασιά και κομψότητα
Ενεργειακό τζάκι, που εξασφαλίζει άνεση με ελάχιστη περιβαλλοντική επίπτωση
Κουφώματα αλουμινίου με ηλεκτρικά ρολά, που προσφέρουν εξαιρετική μόνωση, ασφάλεια και άνεση
Ενδοδαπέδια θέρμανση, για άριστη θερμοκρασία σε όλους τους χώρους
Προεγκατάσταση συναγερμού, για αυξημένη ασφάλεια
Ενεργειακή κλάση Α+, εξασφαλίζοντας χαμηλό ενεργειακό κόστος και υψηλές επιδόσεις
Ιδιόκτητη θέση στάθμευσης
Αποθήκη στο υπόγειο
Σύγχρονος ανελκυστήρας & είσοδος ασφαλείας
Ήσυχη οικιστική περιοχή με πράσινο
Κοντά σε σχολεία, πάρκα, αγορά και ΜΜΜ
Εύκολη πρόσβαση στο κέντρο της Γλυφάδας, τη Λεωφόρο Βουλιαγμένης και το μελλοντικό The Ellinikon
Ιδανική επιλογή για μόνιμη κατοικία με υψηλή προοπτική υπεραξίας
✨ Ένα ακίνητο που συνδυάζει κομψότητα, ποιότητα κατασκευής και μοναδική τοποθεσία.
Επικοινωνήστε μαζί μας για περισσότερες πληροφορίες, κατόψεις ή ραντεβού επί τόπου
🗓️ Delivery: Fall 2025
Price: €560,000
Located in the highly sought-after and quiet neighborhood of Ano Glyfada, this luxurious second-floor apartment of 108 sq.m. is available for sale in a modern residential building of high architectural standards. A perfect blend of functionality, elegance, and top-tier energy efficiency, ideal for families or discerning buyers.
Total area: 108 sq.m.
3 bedrooms, including a master bedroom with en-suite bathroom
1 additional bathroom
1 guest WC
Spacious living room with large openings and natural light
Modern kitchen
Expansive balconies with open views
Energy class A+
Heat pump system for heating and cooling
Full external thermal insulation
High-performance aluminum window frames with thermal break & energy-efficient glazing
Solar water heater
Smart home pre-installation
Option to customize materials (kitchen, wardrobes, bathroom fixtures)
Solar panel system for energy efficiency, reducing costs while supporting a sustainable lifestyle
High-quality wooden flooring throughout the maisonette, adding warmth and timeless elegance
Energy-efficient fireplace, providing a cozy ambiance with minimal environmental impact
Aluminum window frames with electric shutters, offering superior insulation, security, and convenience
Underfloor heating for optimal comfort
Pre-installation for alarm system
Energy class A+ ensuring high energy performance and low running costs
Private parking space
Storage room in the basement
Secure entrance & modern elevator
Peaceful residential area with greenery
Close to schools, parks, local markets, and public transport
Easy access to Glyfada center, Vouliagmenis Avenue, and the upcoming Ellinikon Project
Excellent choice for permanent residence with strong future value appreciation
✨ A residence that combines elegance, build quality, and a prime location.
Contact us for floor plans, more information, or a private showing.
Immerse yourself in the captivating ambiance of our properties. Book a personalized tour to explore the exquisite beauty and unique features of our property.
Our knowledgeable staff will guide you through the property, answering any questions you may have.
Owning a home is a keystone of wealth… both financial affluence and emotional security.